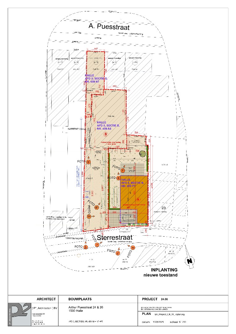
Op zoek naar een interessante bouwopportuniteit in een vlot bereikbare en aangename omgeving? Deze bouwgrond voor het oprichten van een halfopen bebouwing is gelegen aan de Sterrestraat 25 te 1502 Lembeek (Halle) en biedt tal van mogelijkheden voor wie zijn droomwoning wil realiseren.

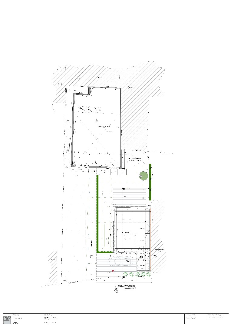
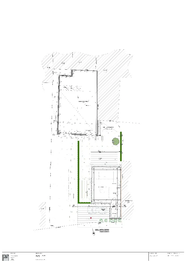
Met een perceeloppervlakte van 2 are 13 centiare en een breedte van 10 meter, geniet u hier van een praktisch en goed in te richten perceel. De toekomstige woning voorziet een gevelbreedte van 7 meter, met een zijdelingse doorgang van 3 meter, ideaal voor extra toegankelijkheid en lichtinval.

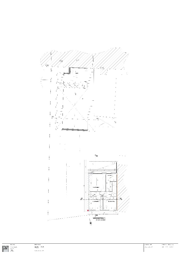
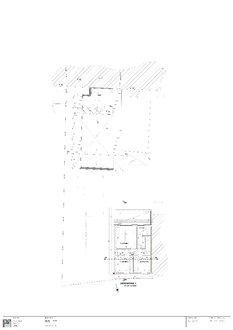
Voor deze bouwgrond zijn er reeds architecturale plannen uitgewerkt voor een moderne eengezinswoning bestaande uit 3 bouwlagen, een bouwdiepte van 12 meter en een achterliggend terras van 3 meter. Bovendien is er een overdekte, privatieve autostaanplaats voorzien vooraan de woning en wordt de woning afgewerkt met een zadeldak.

De verkavelingsvergunning is momenteel in aanvraag, wat deze grond extra interessant maakt voor wie op korte termijn wil bouwen met een duidelijke visie en voorbereiding.

Gelegen in een rustige straat, maar toch met een vlotte verbinding naar belangrijke invalswegen en voorzieningen, combineert deze bouwgrond rust, bereikbaarheid en potentieel.

Interesse? Neem gerust contact op voor meer informatie of een bezoek ter plaatse.

De gegeven informatie en opgegeven oppervlaktes zijn louter indicatief en houden geen enkele juridische verbintenis in.

Woonopp.
153 m²
Slaapkamers
3
Badkamers
1

Algemeen

Adres:Sterrestraat 25
Halle
Referentie:TK/2026/0040
Vraagprijs:€ 140.000
Type:Grond
Beschikbaar vanaf:In overleg
Ligging:In centrum, Residentieel, Verkaveling, Voorstad
Perceeloppervlakte:213 m²
Bewoonbare opp.:153 m²
Type constructie:Traditioneel
Bouwlagen:3

Indeling

Slaapkamers:3
Badkamers:1
WC:2
Woonkamer:Ja, Woonkamer
Keuken:Ja, Open keuken, Ingericht met toestellen
Berging:1 m²
Zolder:Ja
Terras:Ja
Tuin:Ja
Tuin kwaliteit:Normaal
Parking:1
Parking Types:Privé

Comfort

Snelweg:Ja
Treinstation:Ja
Treinhalte:Ja
Busknooppunt:Ja
Bushalte:Ja
Winkel:Ja
School:Ja
Kinderopvang:Ja
Bank:Ja
Ontspanning:Ja
Restaurant:Ja
Raamwerk:Aluminium
Dak:Zadeldak
Dakbedekking:Leisteen
Gevel:Baksteen
Fundering:In volle grond
Beglazing:Hoogrendementsglas

Wettelijke gegevens

Kadastrale Oppervlakte:213 m²
Stedenbouwkundige vergunning:Neen
Voorkooprecht:Neen
Verkavelingsvergunning van toepassing:Ja
Stedenbouwkundige bestemming:Woongebied
Dagvaarding en herstelvordering:Geen rechterlijke herstelmaatregel of bestuurlijke maatregel opgelegd
Overstromingsgevoelig:Geen overstromingsgevoelig gebied
Overstromingsgebied:Geen afgebakende zones
Overstromingskans perceel (P-score):  D
Overstromingskans gebouw (G-score):  D
Erfgoed:Geen beschermd erfgoed
Halle
Sterrestraat 25

€ 140 000


U moet akkoord gaan met het privacybeleid van deze website
* Verplicht in te vullen
** Eén van deze velden is verplicht in te vullen
Halle
Sterrestraat 25

€ 140 000

Halle
Sterrestraat 25

€ 140 000